Verkocht onder voorbehoud:Generaal Cronjéstraat 23A, 2021 JB Haarlem - Foto
Verkocht onder voorbehoud
+47

Generaal Cronjéstraat 23A 2021 JB Haarlem € 535.000,- k.k.

  • Appartement
  • 6 kamers
  • 4 slaapkamers
  • Bouwjaar 1906
  • 135 m² perceeloppervlakte
  • 106 m² gebruiksoppervlakte
  • C Energielabel C

Beschrijving

English below-

HEERLIJK LICHTE en RUIME, DUBBELE BOVENWONING op de Generaal Cronjéstraat met ruim DAKTERRAS op het WESTEN! De woning heeft maar liefst 4 SLAAPKAMERS en is grotendeels in 2021 verbouwd.

In 2021 is de volledige eerste etage vernieuwd er is een volledige nieuwe keuken geplaatst in eiland opstelling met Siemens inbouwapparatuur zoals combioven , inductie kookplaat en vaatwasser, Daarnaast zijn de trappen volledig vernieuwd en is er een nieuwe cv ketel van Remeha geplaatst.
De woning heeft nog charmante authentieke elementen zoals glas in lood en ornamenten plafond met een hoogte van bijna 2,80 meter. Daarnaast heeft de woning een mooie visgraat gelegde pvc vloer en diverse inbouwspots.

Ideale, zeer centrale ligging met een rijk assortiment aan diverse winkels, restaurants en koffie tentjes op loopafstand. Op een slechts een steenworp afstand bevindt zich het treinstation Haarlem, waardoor Amsterdam gemakkelijk bereikbaar is. Op loopafstand van het altijd gezellige centrum van Haarlem bevindt zich "De Cronjé". De Cronjé biedt een gevarieerd scala aan winkels, van speciaalzaken tot grote landelijke ketens. De winkelstraat ligt in een woonbuurt, omringd door scholen en sportfaciliteiten. Het NS-station en de bushalte Julianapark zijn op loopafstand bereikbaar, en de locatie is goed bereikbaar via de Randweg en uitvalswegen naar omliggende steden.

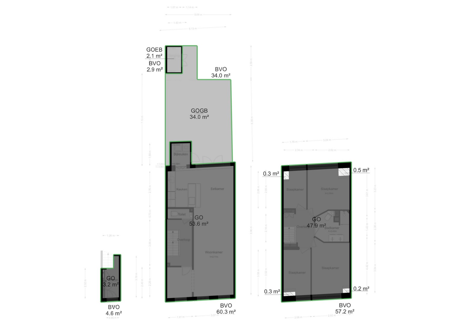
Indeling:
Begane grond: entree, hal met ruime inbouwkast.

Eerste verdieping:
Overloop met toilet, Tv ruimte,
Aan de voorzijde bevindt zich de woonkamer met goede lichtinval en glas in lood bovenramen en uitzicht op de Cronjéstraat. Aan de achterzijde van de woning is de moderne keuken in eiland opstelling met diverse inbouwapparatuur Inductiekookplaat met geintegreerde afzuiger, vaatwasser en combioven, toegang tot het ruime dakterras (34m2) en de eetkamer gesitueerd. Daarnaast bevind zich hier ook nog een ruime bijkeuken.

Tweede verdieping:
Overloop met toegang tot de 4 slaapkamers en badkamer. 2 slaapkamers voorzijde , badkamer met inloopdouche 2de toilet en dubbele wastafel en 2 slaapkamers achterzijde.

Bijzonderheden:
- Ca. 106m2 woonoppervlak.
- Maar liefst 4 slaapkamers.
- keukeneiland met Siemens inbouwapparatuur 2021.
- CV Ketel Remeha 2021.
- Ruime dakterras 34m2 op het zonnige westen.
- Trappen gerenoveerd 2021.
- Authentieke elementen zoals glas in lood ramen en ornamenten plafond.
- In de gezellige winkelstraat 'De Cronjé' gelegen.
- Op loopafstand van het station en het centrum van Haarlem.
- Oplevering: in overleg,

A wonderfully bright and spacious duplex apartment on Generaal Cronjéstraat with a large west-facing roof terrace! The apartment has no fewer than four bedrooms and was largely renovated in 2021.

In 2021, the entire first floor was renovated, including a brand new island kitchen with Siemens appliances, including a combination oven, induction cooktop, and dishwasher. The staircases were also completely renovated, and a new Remeha central heating boiler was installed.
The apartment still boasts charming original features such as stained glass and an ornate ceiling with a height of almost 2.8 meters. It also features a beautiful herringbone patterned PVC floor and various recessed spotlights.

Ideally located, it's very centrally located with a wide variety of shops, restaurants, and coffee shops within walking distance. Haarlem train station is just a stone's throw away, making Amsterdam easily accessible. "De Cronjé" is within walking distance of Haarlem's ever-vibrant city center. Cronjé offers a diverse range of shops, from specialty stores to large national chains. The shopping street is located in a residential area, surrounded by schools and sports facilities. The train station and the Julianapark bus stop are within walking distance, and the location is easily accessible via the Randweg and arterial roads to surrounding towns.

Layout:
Ground floor: entrance hall.

First floor:
Landing with toilet, TV area.

At the front of the house is the living room with plenty of natural light and stained glass windows overlooking Cronjéstraat. At the rear of the house is the modern kitchen with an island layout and various built-in appliances, an induction cooktop with integrated extractor fan, dishwasher, and combination oven. There is also a spacious utility room here.

Second floor:
Landing with access to the four bedrooms and bathroom. Two bedrooms at the front have a bathroom with a walk-in shower, a second toilet, and double sink, and two bedrooms at the rear.

Details:
- Approx. 106m² living space.
- No fewer than 4 bedrooms.
- Kitchen island with Siemens built-in appliances (2021).
- Remeha central heating boiler (2021).
- Spacious 34m² roof terrace facing the sunny west.
- Stairs renovated (2021).
- Authentic elements such as stained glass windows and an ornate ceiling.
- Located in the charming shopping street "De Cronjé."
- Within walking distance of the train station and Haarlem city center.
- Delivery date: negotiable.

Kaart

Kenmerken

Overdracht

Prijs
€ 535.000,- k.k.
Status
Verkocht onder voorbehoud
Aanvaarding
In overleg
Aangeboden sinds
Maandag 20 oktober 2025
Laatste wijziging
Donderdag 13 november 2025

Bouw

Type object
Appartement, bovenwoning
Woonlaag
1e woonlaag
Soort bouw
Bestaande bouw
Bouwjaar
1906
Isolatievormen
Dakisolatie
Dubbel glas
Vloerisolatie

Oppervlaktes en inhoud

Perceeloppervlakte
135 m²
Woonoppervlakte
106 m²
Inhoud
352 m³
Oppervlakte externe bergruimte
2 m²
Oppervlakte gebouwgebonden buitenruimte
34 m²

Indeling

Aantal bouwlagen
2
Aantal kamers
6 (waarvan 4 slaapkamers)

Locatie

Ligging
In centrum

Energieverbruik

Energielabel
C

CV ketel

CV ketel
REMEHA
Bouwjaar
2021
Combiketel
Ja
Eigendom
Eigendom

Uitrusting

Warm water
CV-ketel
Verwarmingssysteem
Centrale verwarming
Badkamervoorzieningen
Douche
Dubbele wastafel
Toilet
Heeft kabel-tv
Ja
Glasvezelaansluiting aanwezig
Ja
Heeft schuur/berging
Ja
Heeft ventilatie
Ja

Vereniging van Eigenaren

Ingeschreven bij de KvK
Ja
Periodieke bijdrage
Ja
Reservefonds
Ja

Kadastrale gegevens

Kadastrale aanduiding
Schoten B 1464
Perceeloppervlakte
135 m²
Omvang
Geheel perceel
Eigendomsituatie
Eigen grond